TSA

PORTFOLIO

FIRM

CONTACT

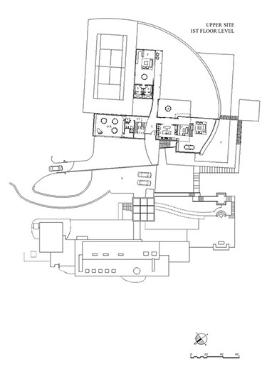
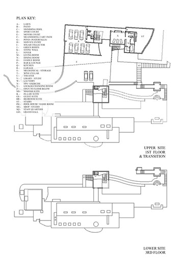
Round Hill Estate

Round Hill Estate

Round Hill Estate

Round Hill Estate

Round Hill Estate

Round Hill Estate

Round Hill Estate

Round Hill Estate

<

>